- AJ Produkti
- Blogs
- Realizētie projekti
- Dizaina birojs Batumi

No Rīgas līdz Gruzijai – dizaina birojs no Anna Hanna Design
Kad interjera dizainere Anna Ilmere (Anna Hanna Design) vērsās pie AJ Produkti ar uzdevumu iekārtot jaunu biroju ārzemēs, mēs uzreiz sapratām — šis projekts būs īpašs. Pazīstama ar savu tīro un vizuāli spilgto estētiku, Anna uzņēmās radīt modernu darba vidi starptautiska uzņēmuma jaunajai filiālei.

Projekts tika īstenots jaunā, vēl topošā biznesa centrā Gruzijas pilsētā Batumi — un īpaši svarīgi bija rūpīgi izplānot pasūtījumu, lai nodrošinātu efektīvu transportēšanu no Latvijas uz Gruziju ar laicīgu nodošanu ekspluatācijā.
Dizaina mērķis bija radīt telpu, kur gribas būt, nevis tikai strādāt — spēles un kustības sajūta, nevis statiska ofisa ikdiena.
Anna Ilmere, Anna Hanna Design

Koncepta pamatā — vieta pie jūras, kur darba vide ir dzīvīga, enerģiska un iedvesmo jaunos profesionāļus. Telpu interjers veidots, izmantojot zilzaļus toņus, betona grīdas un melnus akcentus, iedvesmojoties no lofta un industriālā stila estētikas.
Akcenti ir saskaņoti ar uzņēmuma identitāti — dažviet interjerā iekļauta logo zaļā krāsa, lai stiprinātu vizuālo identitāti. Vides raksturs pielāgots jaunai, dinamiskai komandai, kur radošums un sadarbība ir panākumu pamatā.
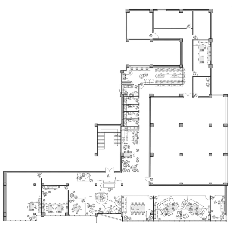
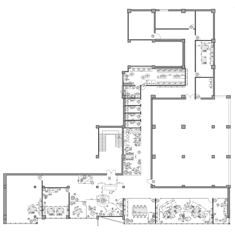
1066 m² funkcionalitātes un komforta
Projekta ietvaros tika izstrādāts 1066 m² plašs biroja telpu plānojums, iekļaujot darba zonas darbiniekiem, atpūtas un virtuves telpas, garderobi, sanāksmju telpu un labierīcības. Telpu izkārtojumā nav hierarhijas — viss balstīts uz darbinieku vajadzībām un komandu sadalījuma.
Svarīga loma bija ergonomikai un akustikai: izmantotas akustiskās starpsienas, kombinēti augstumā regulējami un fiksēta augstuma galdi. Mēbeles, apgaismojums un apdares materiāli tika piegādāti no Latvijas.

Īpaša uzmanība tika pievērsta atpūtas zonām – interjerā dominē drosmīgas krāsas, faktūras un formas, kas piešķir telpai dzīvīgumu un veicina neformālu komunikāciju. Mīkstās mēbeles izvēlētas spilgtas un rotaļīgas, lai telpā radītu kontrastu ar industriālajiem materiāliem un vienlaikus padarītu vidi mājīgāku un draudzīgāku.
Atpūtas zonas izvietotas dažādās biroja daļās — tas palīdz līdzsvarot darba ritmu un dod iespēju pārslēgties, satikties un dalīties idejās.
Vieta dinamiskām sapulcēm
Konferenču zona ir veidota, lai nodrošinātu maksimālu komfortu un kustību brīvību — augstumā regulējamais konferenču galds QBUS ļauj viegli mainīt darba pozīciju, samazinot slodzi mugurai. Ergonomiski izstrādātie zilganpelēkie krēsli JOY atbalsta pareizu sēdpozīciju ilgākām pārrunām.

Rezultāts
AJ Produkti tika izvēlēti šī projekta īstenošanai, jo spējām nodrošināt ātrāko piegādi no visiem izskatītajiem piegādātājiem. Mēs veiksmīgi īstenojām klienta ieceri — projekts tika pabeigts laikā, ar augstu precizitāti un bez kompromisiem kvalitātē. Klients īpaši novērtēja mūsu ātrās piegādes, punktualitāti un rūpīgo mēbelējuma montāžu, kas ļāva bez aizkavēšanās uzsākt darbu jaunajā birojā.
Reizē ar funkcionālu un pārdomātu telpas risinājumu klients ieguva arī atbildīgi ražotus, starptautiski sertificētus produktus ar 7 gadu garantiju. Šī izvēle liecina par uzņēmuma rūpīgu pieeju ilgtspējai — ieguldījumu gan atbildīgā resursu izmantošanā, gan darbinieku labbūtībā.

Šis projekts lieliski parāda, kā dizains kļūst par stratēģisku instrumentu talantu piesaistē. Pateicoties Annas radošajai pieejai un mūsu ergonomiskajiem risinājumiem, tika radīta vide, kas ir gan vizuāli pievilcīga, gan pārdomāta un ērta ikdienā.
Raitis Raups, AJ Produkti pārdošanas projektu vadītājs











